SoftRide SF500 LuLa™ / GT Accessibility / Planning Guide & drawings
|
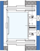
SF501 LuLa - Front Opening
|
|||
![]() |
Capacity |
1400 lbs |
|
|
Maximum travel |
25'-0" (7620 mm) |
||
| Minimum overhead | 123" (3124 mm) Existing building 132" (3353 mm) New building |
||
| Speed | 30 fpm (0.15 m/s) |
||
| Hoistway |
69" W x 79" D |
||
| Platform |
44 1/2" W x 68 3/4" D
(1130 x 1746 mm) |
||
| Inside Cab |
42" W x 60" D
(1067 x 1524 mm) |
||
| Inside Cab Clear Height | 80" (2032 mm) |
||
| Clear Opening |
36" W x 84 H
(914 x 2134 mm) |
||
|
Pit Depth
|
15"
(381 mm) |
||
|
Autocad Drawings |
• WORK DONE BY OTHERS (Word) |
||
|
SF502 LuLa - Front & Rear Opening
|
|||
![]() |
Capacity | 1400 lbs (635 Kg) |
|
| Maximum travel | 25'-0" (7620 mm) |
||
| Minimum overhead | 123" (3124 mm) Existing building 132" (3353 mm) New building |
||
| Speed | 30 fpm (0.15 m/s) |
||
| Hoistway |
69" W x 86 1/2" D |
||
| Platform |
46" W x 71" D
(1168 x 1803 mm) |
||
| Inside Cab |
42" W x 56" D
(1067 x 1423 mm) |
||
| Inside Cab Clear Height | 80" (2032 mm) |
||
| Clear Opening |
36" W x 84 H
(914 x 2134 mm) |
||
|
Pit Depth
|
15"
(381 mm) |
||
|
Autocad Drawings |
• WORK DONE BY OTHERS (Word) |
||


