GT 100R™/ GT Accessibility / Planning guide & drawings
|
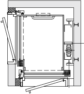
GT 101R - Front opening
|
|||
![]() |
Hoistway |
54" W x 54" D |
|
| Platform |
37 7/8" W x 50 11/16" D
(962 x 1287 mm) |
||
| Inside cab |
36" W x 46 1/8" D
(914 x 1172 mm) |
||
| Inside cab clear height | 80" (2032 mm) |
||
| Clear opening |
32" W x 79 1/4" H
(813 x 2013 mm) |
||
|
Pit depth
|
10"
(254 mm) |
||
|
Autocad Drawings |
• WORK DONE BY OTHERS (PDF) |
||
|
GT 102R - Front & rear opening
|
|||
![]() |
Hoistway |
54" W x 54" D |
|
| Platform |
37 3/4" w x 50 1/2" d
(959 x 1283 mm) |
||
| Inside cab |
36" W x 43" D
(914 x 1092 mm) |
||
| Inside cab clear height | 80" (2032 mm) |
||
| Clear opening |
33 1/4" W x 79 1/4" H
(845 x 2012 mm) |
||
|
Pit depth
|
10"
(254 mm) |
||
|
Autocad Drawings |
|||
|
GT 103R - Front & side opening
|
|||
![]() |
Hoistway |
54" W x 59 3/4" D |
|
| Platform |
39 3/4" W x 51 3/4" D
(1010 x 1314 mm) |
||
| Inside cab |
35 7/8" W x 47 3/4" D
(911 x 1213 mm) |
||
| Inside cab clear height | 80" (2032 mm) |
||
| Clear opening |
33 3/4" W x 79 1/4" H
(857 x 2012 mm) |
||
|
Pit depth
|
10"
(254 mm) |
||
|
Autocad Drawings |
|||
|
GT 104R - Side opening
|
|||
![]() |
Hoistway |
56" W x 54" D |
|
| Platform |
50 1/2" W x 40 1/4" D
(1283 x 1023 mm) |
||
| Inside cab |
48 3/4" W x 36 1/4" D
(1238 x 921 mm) |
||
| Inside cab clear height | 80" (2032 mm) |
||
| Clear opening |
33 1/4" W x 79 1/4" H
(845 x 2012 mm) |
||
|
Pit depth
|
10"
(254 mm) |
||
|
Autocad Drawings |
|||




